Fachliteratur

Das war und ist auch heute noch Pflichtlektüre für jeden P70-Fahrer und Schrauber.

Betriebsanleitungen - Reparaturhandbücher - Pläne - Ersatzteile-Listen - Betriebsanleitungen (Sonstige)

Betriebsanleitungen
Anfangs sogar noch vom VEB Automobilwerk Audi herausgegeben erschienen für den P70 von 1955 bis 1959 zahlreiche Ausgaben der Betriebsanleitung. Mit der Entwicklung weiterer Typen (Kombi, Coupé) wurden die Ausgaben überarbeitet, wenn auch nur geringfügig.
Betriebsanleitung für Personenkraftwagen Typ P70 "Zwickau"
1959 (4., verbesserte Auflage)
Fachbuchverlag Leipzig
Reparaturhandbücher
Erst im Jahre 1958 ist offiziell ein Reparaturhandbuch für den P70 erschienen, bei dem es sich allerdings auch um die einzige Ausgabe handelt. Zwar behinhaltet das Buch viele Informationen über die P70-Technik, typenspezifische Informationen - besonders das Coupé betreffend - sucht man jedoch vergebens.
Reparaturhandbuch für Personenkraftwagen Typ P 70 "Zwickau"
1958
Fachbuchverlag Leipzig
Pläne
Die Pläne entstammen aus den Betriebsanleitungen und Reparaturhandbüchern.
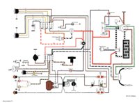
Schaltplan
aus Betriebsanleitung (1959)
Schaltplan
aus Reparaturhandbuch
Schmierplan
aus Betriebsanleitung (1959)
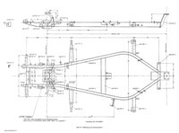
Maßzeichnung für Fahrzeugrahmen
aus Reparaturhandbuch
Ersatzteile-Listen
Ähnlich der Betriebsanleitung erschienen für den P70 einige Ausgaben der Ersatzteile-Liste. Da viele Teile mit denen des F8 übereinstimmten, wurden die Listen für beide Fahrzeugtypen gemeinsam veröffentlicht. Aus den letzteren Ausgaben sind sehr gut Änderungshinweise entnehmbar, die während der Serienproduktion vorgenommen worden sind. Ebenfalls fündig - in einem eher sparsam gehaltenen Anhang - wird man in diesen Ausgaben zu den spezifischen Teilen des Coupés.
Ersatzteile-Liste P70 und F8
1962
VEB SACHSENRING Automobilwerke Zwickau
Betriebsanleitungen (Sonstige)
Diese Betriebs- bzw. Einbauanleitungen zu bestimmten Baugruppen und optionalem Zubehör wurden von deren Herstellern herausgegeben.
Betriebsanleitung Vergaser Typ H 321 und H 362
1956
VEB Berliner Vergaser-Fabrik